Tender Details

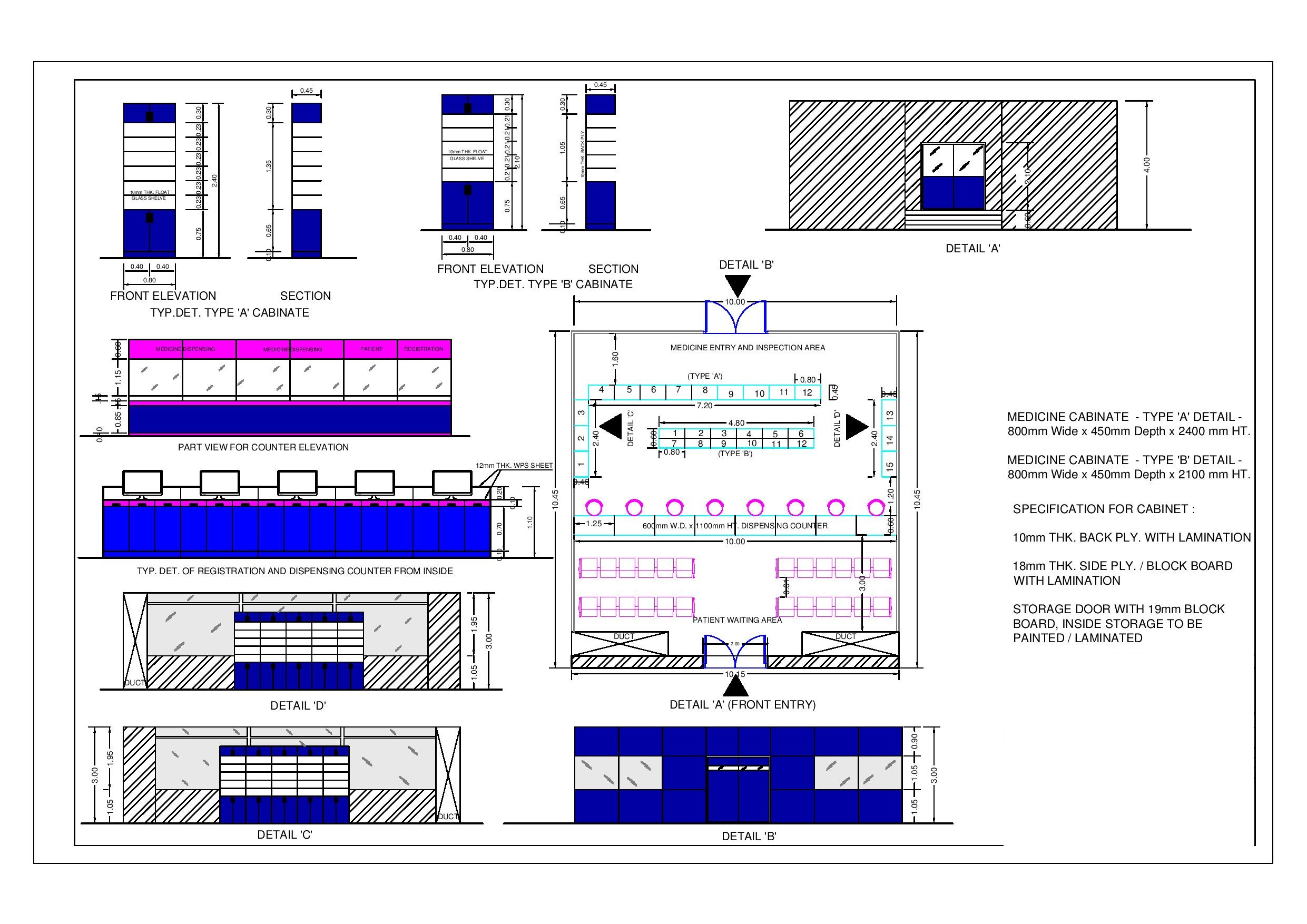
Setting up of a Generic Pharmacy at Civil Hospital, Ahmedabad, Gujarat- Civil Structure & Interior Works

Basic Details
Tender ID: 4783
Tender Reference Number: HLL/RBD/GCSRA/PHARMACY- AHMEDABAD/16-17
Tender Title: Setting up of a Generic Pharmacy at Civil Hospital, Ahmedabad, Gujarat- Civil Structure & Interior Works
Tender Category: Construction
Location: Civil Hospital, Ahmedabad, Gujarat
Dates:
ePublished Date 20-09-2016 10:00 AM
Bid Submission Start Date 20-09-2016 10:00 AM
Bid Submission Closing Date 26-09-2016 02:00 PM
Bid Opening Date 26-09-2016 03:00 PM
Work Details
Work Description Setting up of a Pharmacy - Civil Structure & Interior Works
Pre-Qualification Nil
Documents
NIT 328 Kb Download
GCC 368 Kb Download
SOQ 256 Kb Download
Drawing 767 Kb Download